What’s Old Is New Again
BLOG POST JUNE 2022
What’s Old Is New Again
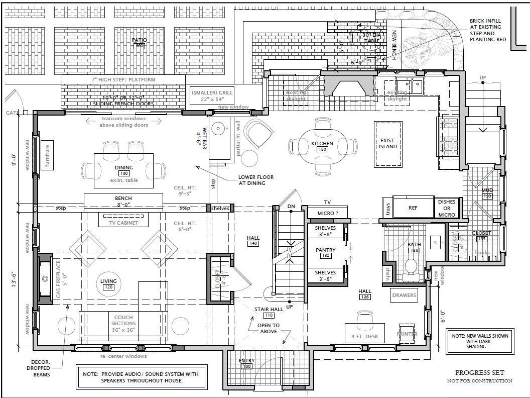
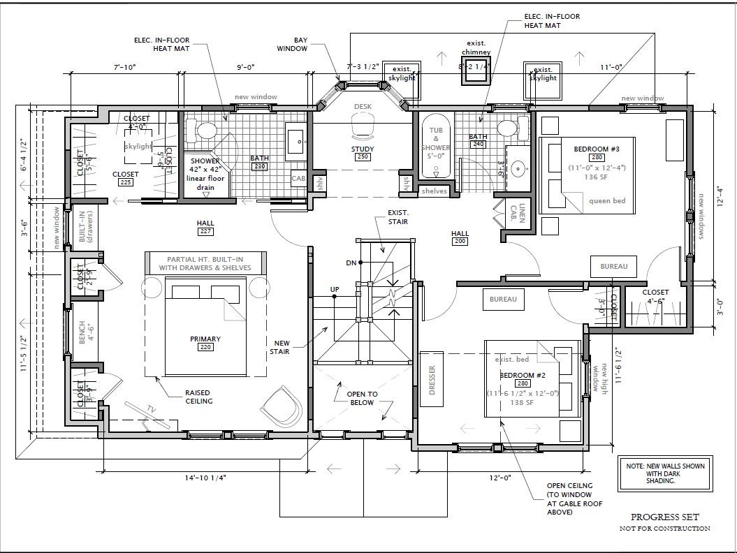
We’re about to embark on another journey with a wonderful client to recreate their family home in Belmont, MA. This is the home where they began their married life together and raised their family, the home they considered selling to move into a more modern space, the home they eventually decided they wanted to keep and reinvent so they could continue to make memories here.

The client has decided that a full gut renovation is what’s necessary to truly transform the spaces. We couldn’t agree more. However, we are working within an existing architectural envelope which means that when complete, the interior and exterior need to speak a similar, albeit more modern version of their design language.


In our care, this home will be redesigned and constructed with an appreciation for the past, a mindset in the present and a vision for the future. Our collaboration with a talented, creative architect and a detail-oriented, communicative general contractor allows us to plan, design and execute our vision to re-imagine this family home for a client who is 110% willing to go the extra mile so that this team can create something extraordinary. And we will…. you’ll see.
